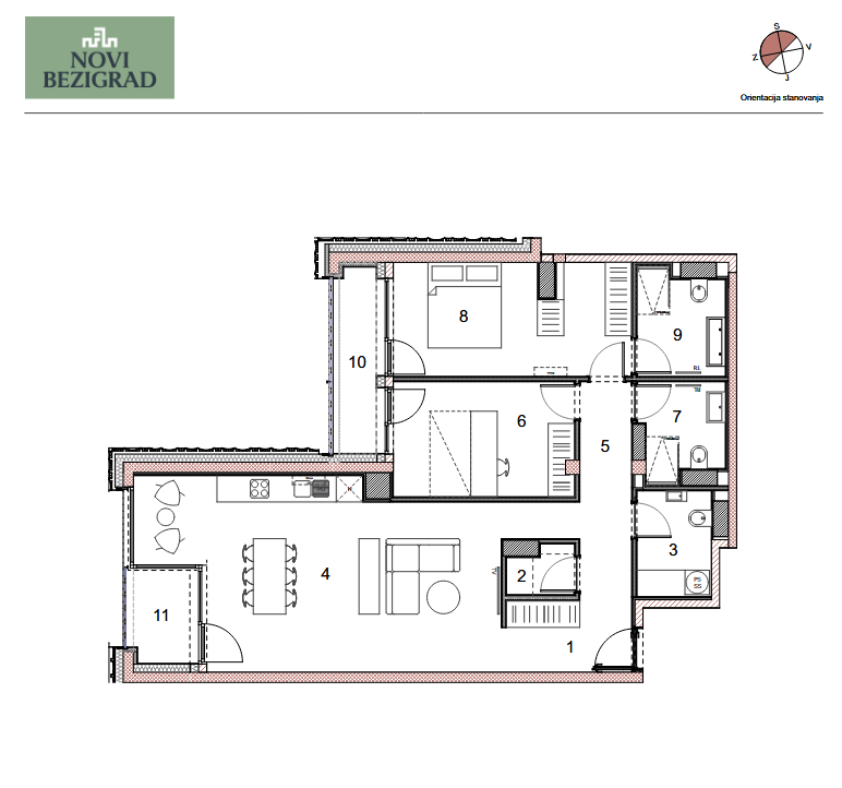
• Razporeditev prostorov

    • Predsoba
      7.33 m2
    • Kopalnica
      4.72 m2
    • Soba - spalnica
      15.96 m2
    • Kopalnica
      5.45 m2
    • Dnevni prostor s kuhinjo/jedilnico
      39.63 m2
    • Kabinet
      12.49 m2
    • WC ločen
      4.75 m2
    • Garderobna soba
      1.82 m2
    • Hodnik
      3.76 m2
    • Loža
      5.60 m2
    • Loža
      3.90 m2
    • Shramba
      4.70 m2
    • Shramba
      4.80 m2
  • Podrobnejši opis

    SOSESKA NOVI BEŽIGRAD

    Na lokaciji stare bežigrajske tiskarne se gradi nova soseska Novi Bežigrad, ki se natančneje nahaja med Tolstojevo ulico in ulico Mašera - Spašićeve.

    Stanovanjska soseska Novi Bežigrad narekuje novo vizijo bežigrajske četrti – zeleno, odprto in svetlo. Z moderno terasno zazidavo ustvarja prostor za zelene površine tudi v višjih nadstropjih, velike steklene površine znotraj stanovanj pa odpirajo pot svetlobi in čudovitim razgledom na mogočne Julijske Alpe. Objekt bo zgrajen iz kakovostnih in vzdržljivih materialov, ki zagotavljajo dolgo življenjsko dobo in se zoperstavljajo okoljskim vplivom v prihodnosti.

    ZASNOVA

    Bivalni prostori so svetli, zračni in prostorni, večina ima vsaj en zunanji prostor, ki vam omogoča, da uživate v razgledu na bližnjo okolico in mogočno gorovje. V sosesko je maksimalno integrirano zelenje, kar bo prispevalo k vedno svežem zraku in prijetni temperaturi. 

    Več o projektu si poglejte na spodnji povezavi:

    https://novibezigrad.uniko.si/

    PRIMOPREDAJE STANOVANJ SO PREDVIDENE POLETI LETA 2028.

Novi Bežigrad kontakt

Zaupajte nam svoje želje, za vse ostalo poskrbimo mi.

Nepremičninska agencija Nest

Vaša ekipa

Tukaj smo zato, da odgovorimo na vsakršno vprašanje in vam najdemo gnezdo, v katerem boste tkali nove spomine. Kot ekskluzivni zastopnik projekta vas bomo vodili na vsakem koraku poti, po želji pa priskočili na pomoč tudi pri prodaji obstoječe nepremičnine.
SORODNI OGLASI